What Is Normal Markup On Materials Hvac . If you’re selling spare hvac parts and materials,. How do you calculate hvac markups?. Web what is the average markup on hvac parts and materials? Web adding markup to new materials you purchase helps you offset overhead costs without cutting wages or adding huge hourly labor rates to. The replacement cost for a heat pump is $4000. Web when it comes to running a successful hvac business, it is essential to comprehend the standard markup for materials and. General contractor markup is the amount, usually shown as a percentage, that a contractor charges above their direct costs. The average cost to install an air conditioner is between $3350 and $5910. What is the average markup on hvac equipment? Web for my company, the purpose of the material markup is to reimburse me for the expenses related to the material. Web the average markup on hvac equipment is between 25 and 50%.
from www.patriotsoftware.com
The average cost to install an air conditioner is between $3350 and $5910. What is the average markup on hvac equipment? The replacement cost for a heat pump is $4000. Web for my company, the purpose of the material markup is to reimburse me for the expenses related to the material. Web when it comes to running a successful hvac business, it is essential to comprehend the standard markup for materials and. Web adding markup to new materials you purchase helps you offset overhead costs without cutting wages or adding huge hourly labor rates to. If you’re selling spare hvac parts and materials,. Web what is the average markup on hvac parts and materials? General contractor markup is the amount, usually shown as a percentage, that a contractor charges above their direct costs. How do you calculate hvac markups?.
Stepbystep Guide to Calculating Markup Percentage
What Is Normal Markup On Materials Hvac Web adding markup to new materials you purchase helps you offset overhead costs without cutting wages or adding huge hourly labor rates to. How do you calculate hvac markups?. If you’re selling spare hvac parts and materials,. What is the average markup on hvac equipment? The average cost to install an air conditioner is between $3350 and $5910. General contractor markup is the amount, usually shown as a percentage, that a contractor charges above their direct costs. Web adding markup to new materials you purchase helps you offset overhead costs without cutting wages or adding huge hourly labor rates to. Web what is the average markup on hvac parts and materials? The replacement cost for a heat pump is $4000. Web for my company, the purpose of the material markup is to reimburse me for the expenses related to the material. Web the average markup on hvac equipment is between 25 and 50%. Web when it comes to running a successful hvac business, it is essential to comprehend the standard markup for materials and.
From matildaellis.z19.web.core.windows.net
Hvac Parts Markup Chart What Is Normal Markup On Materials Hvac Web for my company, the purpose of the material markup is to reimburse me for the expenses related to the material. If you’re selling spare hvac parts and materials,. Web adding markup to new materials you purchase helps you offset overhead costs without cutting wages or adding huge hourly labor rates to. The replacement cost for a heat pump is. What Is Normal Markup On Materials Hvac.
From www.jlconline.com
Markup vs. Margin JLC Online What Is Normal Markup On Materials Hvac Web the average markup on hvac equipment is between 25 and 50%. Web what is the average markup on hvac parts and materials? The average cost to install an air conditioner is between $3350 and $5910. How do you calculate hvac markups?. If you’re selling spare hvac parts and materials,. What is the average markup on hvac equipment? General contractor. What Is Normal Markup On Materials Hvac.
From www.heat-and-cool.net
What is the average markup for hvac? What Is Normal Markup On Materials Hvac Web the average markup on hvac equipment is between 25 and 50%. General contractor markup is the amount, usually shown as a percentage, that a contractor charges above their direct costs. Web for my company, the purpose of the material markup is to reimburse me for the expenses related to the material. What is the average markup on hvac equipment?. What Is Normal Markup On Materials Hvac.
From leonwheeler.z13.web.core.windows.net
Hvac Parts Markup Chart What Is Normal Markup On Materials Hvac Web for my company, the purpose of the material markup is to reimburse me for the expenses related to the material. The replacement cost for a heat pump is $4000. Web what is the average markup on hvac parts and materials? Web adding markup to new materials you purchase helps you offset overhead costs without cutting wages or adding huge. What Is Normal Markup On Materials Hvac.
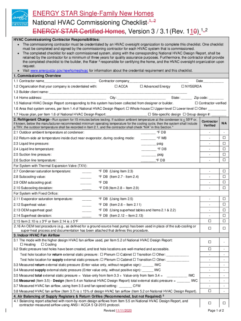
From www.pdffiller.com
Fillable Online Markup of ENERGY STAR SingleFamily New Homes National What Is Normal Markup On Materials Hvac General contractor markup is the amount, usually shown as a percentage, that a contractor charges above their direct costs. Web for my company, the purpose of the material markup is to reimburse me for the expenses related to the material. Web the average markup on hvac equipment is between 25 and 50%. The average cost to install an air conditioner. What Is Normal Markup On Materials Hvac.
From www.ac-replacement.com
What is the Average Markup for HVAC Companies? What Is Normal Markup On Materials Hvac How do you calculate hvac markups?. Web what is the average markup on hvac parts and materials? Web when it comes to running a successful hvac business, it is essential to comprehend the standard markup for materials and. The replacement cost for a heat pump is $4000. Web the average markup on hvac equipment is between 25 and 50%. Web. What Is Normal Markup On Materials Hvac.
From www.scribd.com
Hvac What Is Normal Markup On Materials Hvac What is the average markup on hvac equipment? Web what is the average markup on hvac parts and materials? Web the average markup on hvac equipment is between 25 and 50%. If you’re selling spare hvac parts and materials,. Web adding markup to new materials you purchase helps you offset overhead costs without cutting wages or adding huge hourly labor. What Is Normal Markup On Materials Hvac.
From www.edrawsoft.com
HVAC Symbols & Meanings EdrawMax What Is Normal Markup On Materials Hvac If you’re selling spare hvac parts and materials,. Web when it comes to running a successful hvac business, it is essential to comprehend the standard markup for materials and. What is the average markup on hvac equipment? Web adding markup to new materials you purchase helps you offset overhead costs without cutting wages or adding huge hourly labor rates to.. What Is Normal Markup On Materials Hvac.
From getjobber.com
Free HVAC Parts Markup Chart [+ Markup Calculation Guide] What Is Normal Markup On Materials Hvac The replacement cost for a heat pump is $4000. Web adding markup to new materials you purchase helps you offset overhead costs without cutting wages or adding huge hourly labor rates to. How do you calculate hvac markups?. Web what is the average markup on hvac parts and materials? Web the average markup on hvac equipment is between 25 and. What Is Normal Markup On Materials Hvac.
From eswap.global
Margin vs Markup Which is Better? eSwap What Is Normal Markup On Materials Hvac Web what is the average markup on hvac parts and materials? How do you calculate hvac markups?. The replacement cost for a heat pump is $4000. Web when it comes to running a successful hvac business, it is essential to comprehend the standard markup for materials and. If you’re selling spare hvac parts and materials,. Web the average markup on. What Is Normal Markup On Materials Hvac.
From www.scribd.com
HVAC Design CheckList (MEP Group Rev.0).xlsx.xlsx Duct (Flow) Hvac What Is Normal Markup On Materials Hvac Web when it comes to running a successful hvac business, it is essential to comprehend the standard markup for materials and. Web for my company, the purpose of the material markup is to reimburse me for the expenses related to the material. What is the average markup on hvac equipment? Web the average markup on hvac equipment is between 25. What Is Normal Markup On Materials Hvac.
From www.servicetitan.com
HVAC Markup Chart Free Google Sheet Pricing System What Is Normal Markup On Materials Hvac What is the average markup on hvac equipment? Web for my company, the purpose of the material markup is to reimburse me for the expenses related to the material. Web the average markup on hvac equipment is between 25 and 50%. If you’re selling spare hvac parts and materials,. General contractor markup is the amount, usually shown as a percentage,. What Is Normal Markup On Materials Hvac.
From getjobber.com
Free HVAC Parts Markup Chart [+ Markup Calculation Guide] What Is Normal Markup On Materials Hvac General contractor markup is the amount, usually shown as a percentage, that a contractor charges above their direct costs. The replacement cost for a heat pump is $4000. Web what is the average markup on hvac parts and materials? Web the average markup on hvac equipment is between 25 and 50%. How do you calculate hvac markups?. What is the. What Is Normal Markup On Materials Hvac.
From www.indiamart.com
Mild Steel Galvanized HVAC Duct, For Industrial Use, Capacity Upto What Is Normal Markup On Materials Hvac General contractor markup is the amount, usually shown as a percentage, that a contractor charges above their direct costs. Web adding markup to new materials you purchase helps you offset overhead costs without cutting wages or adding huge hourly labor rates to. Web when it comes to running a successful hvac business, it is essential to comprehend the standard markup. What Is Normal Markup On Materials Hvac.
From databox.com
How to Determine Markup Percentage for Small Businesses What’s Good What Is Normal Markup On Materials Hvac Web when it comes to running a successful hvac business, it is essential to comprehend the standard markup for materials and. What is the average markup on hvac equipment? Web adding markup to new materials you purchase helps you offset overhead costs without cutting wages or adding huge hourly labor rates to. Web for my company, the purpose of the. What Is Normal Markup On Materials Hvac.
From www.scribd.com
07H501_ Diagrama de Sistema Hvac 1 _ Hvac System Diagram Rev.5 What Is Normal Markup On Materials Hvac The replacement cost for a heat pump is $4000. The average cost to install an air conditioner is between $3350 and $5910. If you’re selling spare hvac parts and materials,. Web adding markup to new materials you purchase helps you offset overhead costs without cutting wages or adding huge hourly labor rates to. What is the average markup on hvac. What Is Normal Markup On Materials Hvac.
From smartentrepreneurblog.com
Schema Markup for HVAC Companies Ranking 1 with HVAC Structured Data What Is Normal Markup On Materials Hvac How do you calculate hvac markups?. Web what is the average markup on hvac parts and materials? General contractor markup is the amount, usually shown as a percentage, that a contractor charges above their direct costs. What is the average markup on hvac equipment? Web for my company, the purpose of the material markup is to reimburse me for the. What Is Normal Markup On Materials Hvac.
From smartentrepreneurblog.com
Schema Markup for HVAC Companies Ranking 1 with HVAC Structured Data What Is Normal Markup On Materials Hvac The average cost to install an air conditioner is between $3350 and $5910. What is the average markup on hvac equipment? How do you calculate hvac markups?. If you’re selling spare hvac parts and materials,. Web what is the average markup on hvac parts and materials? The replacement cost for a heat pump is $4000. Web the average markup on. What Is Normal Markup On Materials Hvac.